Anbau an ein denkmalgeschütztes Gebäude in Holzmassivbauweise.
Haus am Weiher
Ebersberg
Ebersberg
Auftraggeber: privat
Ort: Ebersberg
Zeitraum: 2016 bis 2017
Leistungsphasen: 1-3, 5-8
Beteiligte: Landschaftsarchitekt: Harry Dobrzanski, Penzberg / Statik: a.k.a. Ingenieure, München
Preise: Architektouren 2018 | "Häuser des Jahres 2018", Callwey-Verlag + DAM Frankfurt | DAM-Preis 2019 nominiert | Das Haus Spezialpreis Wohngesundheit
Veröffentlichungen: Architektouren 2018 | Häuser des Jahres 2018 | Architekturführer Deutschland 2019 | Das Haus Spezial "Gesund Wohnen" 2018 | Das Haus 11/2018
Ort: Ebersberg
Zeitraum: 2016 bis 2017
Leistungsphasen: 1-3, 5-8
Beteiligte: Landschaftsarchitekt: Harry Dobrzanski, Penzberg / Statik: a.k.a. Ingenieure, München
Preise: Architektouren 2018 | "Häuser des Jahres 2018", Callwey-Verlag + DAM Frankfurt | DAM-Preis 2019 nominiert | Das Haus Spezialpreis Wohngesundheit
Veröffentlichungen: Architektouren 2018 | Häuser des Jahres 2018 | Architekturführer Deutschland 2019 | Das Haus Spezial "Gesund Wohnen" 2018 | Das Haus 11/2018
Thema:
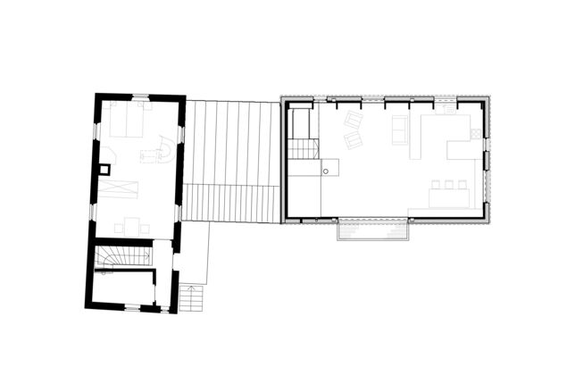
Neben dem denkmalgeschützten ehemaligen Wasserhäusl wird ein alter Stadl durch ein Wohngebäude ersetzt. Es ergänzt das vorhandene Raumgefüge bestehend aus Wasserhäusl mit kleinen Anbau und bietet so Raum für eine fünfköpfige Familie.
Durch die Höhenvorgaben aus dem Bestand und dem stark geneigten Gelände entsteht ein zusammenhängendes Wohngebäude aus alt und neu auf unterschiedlichen Ebenen, die durch offene Übergänge miteinander in Kontakt treten.
Durch die starke Hanglage ergibt sich ein in den Hügel geschobenes Untergeschoß, das sich zum talseitigen Bachlauf orientiert, sowie ein Erdgeschoß mit entgegengesetzter Ausrichtung hin zum privaten Garten.
Material:
Durch die Vorgaben des Denkmalschutzes, den alten Stadl durch ein Wohngebäude in "Stadl-Optik" zu ersetzen, war die folgerichtige Entscheidung ein Holzhaus zu bauen.
Die Fassade besteht aus sägerauhen, unregelmäßig gesetzten Lärchenbrettern.
Der Logik eines Stadls entsprechend, sind die Fensteröffnungen unregelmäßig gesetzt und dimensioniert - ganz am Bedarf orientiert. So gibt es großflächige Öffnungen, die einen direkten Bezug ins Grün herstellen, aber auch kleine, gerichtete Ausblicke mit viel Intimität. Die kleinen Guckfenster sind zusätzlich mit Teilen der Fassadenschalung überzogen, sodass sie von außen kaum als Fenster in Erscheinung treten.
Das Gebäude ist in Holzmassivbauweise aus Brettstapelelementen hergestellt, die vorgefertigt auf die Baustelle geliefert und dort montiert werden.
Das in den Hang gegrabene Untergeschoß ist in wasserundurchlässigem Beton ausgeführt und innenseitig mit Lehm verputzt, der den Feuchtehaushalt im Gebäude mitreguliert.
Neben dem denkmalgeschützten ehemaligen Wasserhäusl wird ein alter Stadl durch ein Wohngebäude ersetzt. Es ergänzt das vorhandene Raumgefüge bestehend aus Wasserhäusl mit kleinen Anbau und bietet so Raum für eine fünfköpfige Familie.
Durch die Höhenvorgaben aus dem Bestand und dem stark geneigten Gelände entsteht ein zusammenhängendes Wohngebäude aus alt und neu auf unterschiedlichen Ebenen, die durch offene Übergänge miteinander in Kontakt treten.
Durch die starke Hanglage ergibt sich ein in den Hügel geschobenes Untergeschoß, das sich zum talseitigen Bachlauf orientiert, sowie ein Erdgeschoß mit entgegengesetzter Ausrichtung hin zum privaten Garten.
Material:
Durch die Vorgaben des Denkmalschutzes, den alten Stadl durch ein Wohngebäude in "Stadl-Optik" zu ersetzen, war die folgerichtige Entscheidung ein Holzhaus zu bauen.
Die Fassade besteht aus sägerauhen, unregelmäßig gesetzten Lärchenbrettern.
Der Logik eines Stadls entsprechend, sind die Fensteröffnungen unregelmäßig gesetzt und dimensioniert - ganz am Bedarf orientiert. So gibt es großflächige Öffnungen, die einen direkten Bezug ins Grün herstellen, aber auch kleine, gerichtete Ausblicke mit viel Intimität. Die kleinen Guckfenster sind zusätzlich mit Teilen der Fassadenschalung überzogen, sodass sie von außen kaum als Fenster in Erscheinung treten.
Das Gebäude ist in Holzmassivbauweise aus Brettstapelelementen hergestellt, die vorgefertigt auf die Baustelle geliefert und dort montiert werden.
Das in den Hang gegrabene Untergeschoß ist in wasserundurchlässigem Beton ausgeführt und innenseitig mit Lehm verputzt, der den Feuchtehaushalt im Gebäude mitreguliert.